DL200

  

 

 

    

 

 

    

El DLL200 es un detector de lluvia basado sobre el principio capacitivo. El valor de capacidad del elemento sensible, sobre un soporte de alumina, varia según la superficie que se moja por las gotas de agua. Un calentador integrado en el sensor lo tiene seco, evaporando el agua caída, y así evita falsas señales debidas a niebla o fenómenos de condensación. Además, el calentador se activa con temperatura bajas, soltando la nieve caída, permitiendo así al instrumento detectar las precipitaciones de nieve. El casquete circular externo del instrumento actua como paraviento para el sensor garantizando la ausencia de indicaciones falsas. El instrumento tiene tres distintas salidas: una salida “rain on/off” señala la presencia (estado on) o ausencia (estado off) de precipitación de lluvia (o nieve) y puede ser usada para comandar la bobina de un relé o dispositivos analógicos; una salida analógica en tensión 0…1V (calibrada), y una salida en frecuencia en el rango 1,5…6 khz (no calibrada) proporcionan una precisa indicación sobre el nivel de intensidad de la precipitación en curso. La salida on/off tiene un circuito de retardo que señala la condición de fin de lluvia con aprox. 2 minutos de retraso de manera que se puedan distinguir las condiciones de fin de lluvia de la de lluvia liviana. El calentador puede ser desactivado en las aplicaciones en las que el gasto energético es critico. Bajo pedido, se puede instalar el disuasor para pájaros formado por un anillo con 6 puntas de día. 3 mm y altas 60 mm.

Aplicaciones típicas

El detector de lluvia se usa como dispositivo en si y como dispositivo conectado a un sistema de adquisición datos (por ejemplo en una estación meteorológica).

En la Figura 1, la salida ON/OFF del DLL200 esta conectada a la bobina de un relé que alimenta un motor: en presencia de lluvia, la salida ON/OFF excita la bobina del relé que interviene cerrando el contacto normalmente abierto (en este caso, el detector de lluvia se usa como parte de un sistema de control,

por ejemplo, para cerrar las ventanas). !Cuidado! Usar siempre un diodo de protección, como mostrado en la figura 1, cuando la salida del DLL200 se va a conectar a la bobina de un relé.

Instalación y mantenimiento

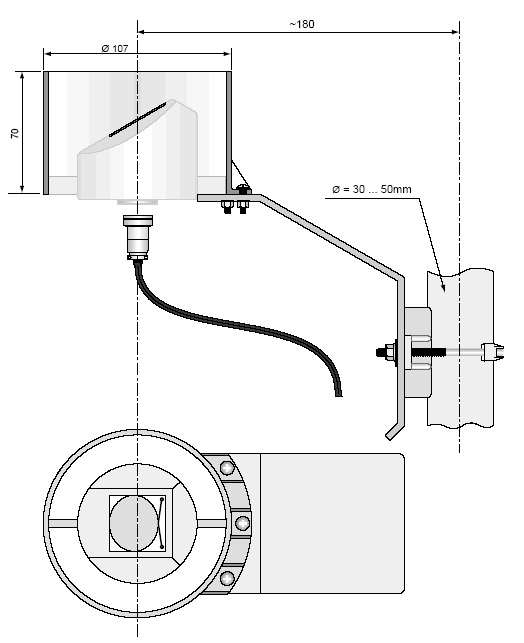
Poner el detector lejos de los edificios, árboles, etc., asegurándose de que el

espacio arriba este libre de cualquier objeto que pueda obstacular la detección

de la lluvia. Para la instalación, usar los accesorios proporcionados. El soporte

puede ser fijado a un palo de día, entre 30 y 50 mm. El palo puede ser horizontal

o vertical gracias a la doble perforación del soporte. Para la conexión eléctrica

se proporciona un cable estándar de 5 metros con conector IP68 a insertar en

el hondo del instrumento: en las características técnicas se indican los colores

de los hilos y sus funciones. Para garantizar una buena inmunidad contra los

disturbios, se recomienda conectar la unión del cablete blindado a masa y tener

separados los dos hilos de masa: lo del calentador y lo de la electrónica. Tener

el sensor limpio.

 

DATOS TÉCNICOS

Sensor

Tipo Capacitivo con calentador integrado

Área sensor 6.6 cm2

Ángulo 30°

Sensibilidad:

Área mínima sensible 0.05 cm2

Retraso de intervención (OFF>>ON) < 0.1ms

Retraso de apagado (ON>>OFF) < 5 min

Dimensiones

Diá. x altura ø107 x 70 mm

Peso 450 g

Longitud del cable 5 m (otras medidas, bajo pedido)

Material LURAN S777K de BASF

 

Características eléctricas

Alimentación

Tensión de alimentación 12Vdc ± 10%

Corriente absorbida 130 mA (típica)

230 mA (máx.)

10 mA (con calentador desactivado)

Potencia absorbida por el sensor 0.5 … 2.3W

Salidas

Rain ON/OFF Open colector, se cierra en caso de lluvia.

Tensión máxima 15V

Corriente máxima 50 mA

Salida analógica 0…1V (0V = lluvia, 1V = sensor seco)

Salida en frecuencia no calibrada 1500 … 6000Hz (lluvia … sensor seco)

Entradas

Heater OFF OFF = conectado a GND

Capacidad del contacto de cierre 15Vdc, 2mA

Condiciones ambientales

Temperatura de trabajo -15 … +55°C

Temperatura de almacenamiento -40 … +65°C

 

 

 

Conexión eléctrica - códigos color Pin

Positivo de alimentación Rojo 2 +12Vdc

Rain ON/OFF Azul 4 Rain ON/OFF

Heater OFF Verde 1 Calefacción OFF

Salida analógica Amarillo 6 Salida analógica

Salida en frecuencia Blanco 3 Salida frecuencia

Masa de la electrónica Negro 8 GND

Masa del calentador Gris 7 GND calefacción

 

CÓDIGOS DE PEDIDO

DLL200: Detector de lluvia completo de soporte de fijación. Salida sobre

conector de 8 poles según IEC 60130-9 IP68. Completo de conector

hembra volante. El cable tiene que ser pedido separadamente.

DLL200A: Cable de conexión de 5 m: por un lado conector hembra 8 poles IEC

60130-9 IP68. Otras longitudes bajo pedido.

DLL200B: Bajo pedido, se puede instalar el disuasor para pájaros formado

por un anillo con 6 puntas de diá. 3 mm y altas 60 mm.

 

 www.gisiberica.com